物联网消防增压给水设备采用新型卧式单级消防泵XBD-W系列、新型立式单级消防泵 XBD-L,以及新型立式多级消防泵XBD-D、XBD-CDL系列等泵型供客户选择,这些系列的消防泵均已通过国家强制性消防产品认证,泵的性能及材质均符合国家规范Gb6245《消防泵》的要求。
消防增压给水设备一般为两台消防泵(一用一备)集中布置的供水机组,基本上可满足各种消防水系统设计要求。考虑到石化、煤矿等特殊场合的设计参数要求大,我们同时开发了三台消防泵(两用一备)集中布置的供水机组,通过两台消防泵并联同时运行达到大的设计参数要求。
一、环境条件
环境温度:540℃
介质温度:4-70℃
空气相对湿度:≤85%(20±5C)
供电电压:380V(+5%,-10%)
二、设备设计依据及适用范围
消防增压给水设备是依据中华人民共和国国家标准 GB27898.3-2011消防增压稳压给水设备、GB50974-2014消防给水及消火栓系统技术规范、GB50084-2017自动喷水灭火系统设计规范,适用于室内消火栓系统、室外消火栓系统、自动喷水灭火系统、消防炮灭火系统等各种水灭火消防系统。
三、产品特点
1、消防增压给水设备完全按照国家和行业规范设计生产,产品通过国家消防检测中心认证;
2、消防增压给水设备采用的零部件符合国家和行业标准,关键零部件采用了国内外知名品牌产品
3、消防增压给水设备结构紧凑、合理,现场布置灵活,设备与客户对接接处采用法兰形式连接,现场安装简便。
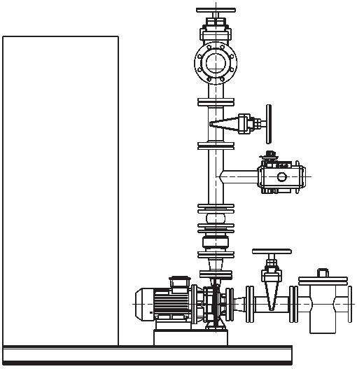
四、产品展示
物联网消防增压给水设备由消防泵、控制柜、管路、阀门仪表及槽钢底座组成,设备基本结构展示图如下:
物联网消防增压给水设备外形图



威尼斯登录中心
工厂地址:上海市松江区叶榭镇张泽凯仕工业区(张泽路988号)
客服热线:021-56727555
电子邮箱:[email protected]
传 真:0086-21-57885999
